Sold

15 Head Road, Inglewood

SOLD for $1,405,008

3 1 4 3,377 m2

Tranquil Country Living Minutes From The Suburbs

Lovingly maintained this country gem offers space, flexibility and charm, all situated on a generous allotment of land within this prime Adelaide Hill's location.

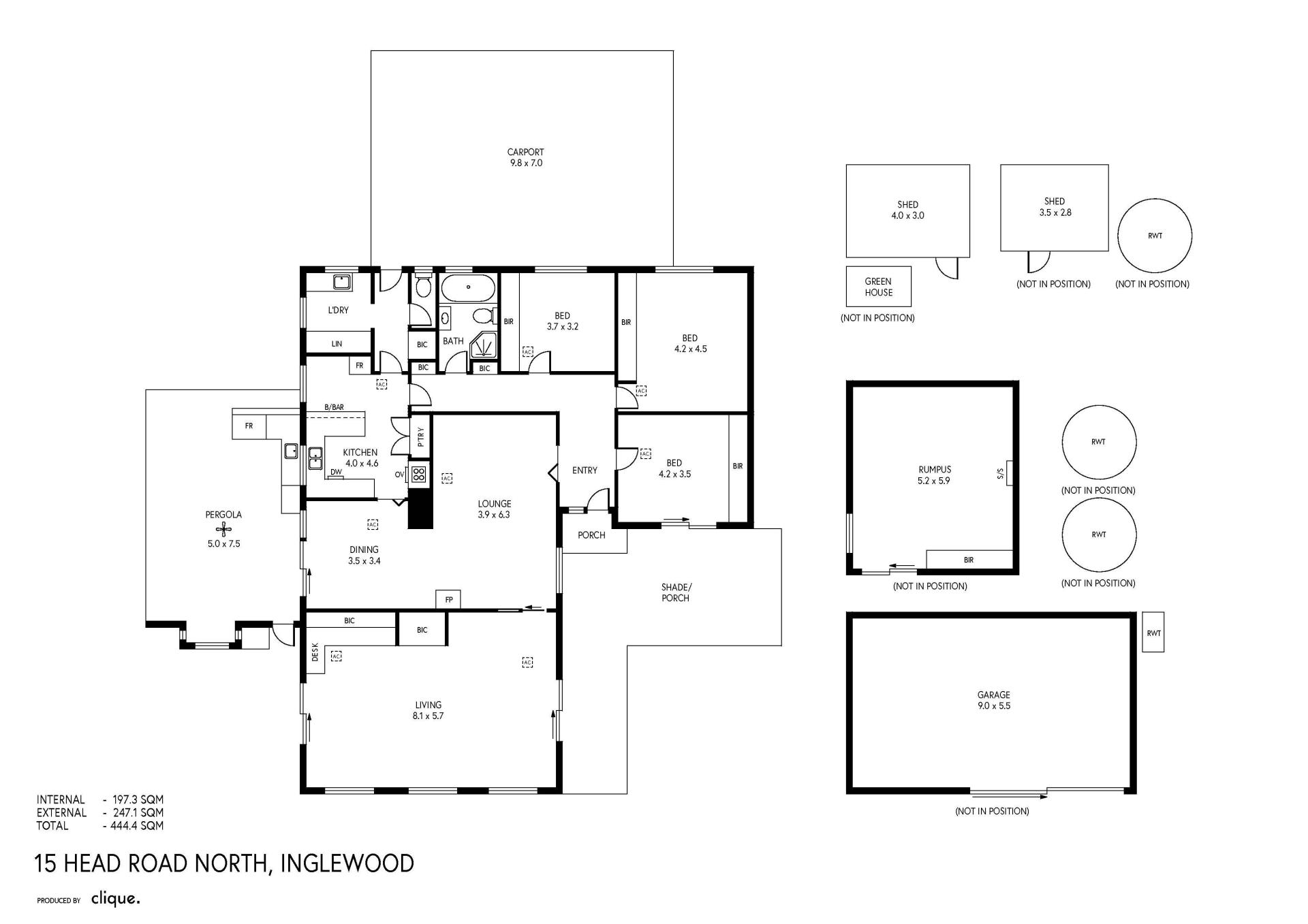
Offering a versatile floorplan with 3 bedrooms, multiple living areas inside and out, stunning established gardens and views, this is truly the ultimate in country lifestyle living. Spoilt for choice you are connected to mains water with the option of using the ample rainwater storage which is also plumbed to the home.

The gated driveway provides access to a generous undercover carport, ideal for accommodating multiple vehicles, a caravan, boat, or trailers. Additionally, a large garage offers further parking, storage solutions, or the perfect space for a personal workshop.

Upon entering through the front door, you're welcomed into the main lounge and dining area, complete with a cosy woodfire fireplace. This space flows seamlessly into a spacious living/games room, perfect as a children's play area, a home office, or a multi-purpose retreat. The possibilities are endless for this versatile space.

Continuing through the home, you'll find the stylish and functional kitchen, a true delight for the family chef. Thoughtfully designed, it features ample bench and cupboard space, sleek stone benchtops, a breakfast bar, and large windows that fill the space with natural light while offering views of the beautifully maintained backyard.

The home includes 3 generous bedrooms, completed with built in robes and a modern family bathroom. An additional toilet is also located adjacent to the fully fitted laundry for convenience.

The dining room flows out to a spacious undercover entertaining, complete with an outdoor kitchen and a firepit nearby, the ideal setting for family meals and entertaining during beautiful weather. The expansive green space is framed by meticulously manicured gardens, offering multiple seating areas to relax and soak in natures tranquility.

The property also offers multiple gardens sheds, a chicken run and a 9m x 5.5m shed for your additional parking and storage. Take advantage of the carpeted and climate controlled rumpus room, equipped with built-in storage it is ready to be transformed to suit your lifestyle needs.

Features you'll love:

- Mains water
- Outdoor kitchen
- Indoor and outdoor fireplaces
- Multiple sheds
- Rumpus room
- Beautifully maintained gardens
- Multiple indoor and outdoor living areas
- 3 Water Tanks
- Solar System
- Ducted Reverse Cycle Heating & Cooling

If you are looking for a stunning hills lifestyle, all within a few minutes of the suburbs, local cafes, schools, restaurants and pubs, this home is the one for you!

Call Mark on 0412 085 124 or Cameron on 0434 123 082 today!

All information provided has been obtained from sources we believe to be accurate, however, we cannot guarantee the information is accurate and we accept no liability for any errors or omissions (including but not limited to a property's land size, floor plans and size, building age and condition). Interested parties should make their own inquiries and obtain their own legal advice.

Features

Fenced Outdoor entertainment area Water Tank Solar Panels Car Parking - Surface Window Treatments Floorboards

Details

Address 15 Head Road, Inglewood
Price SOLD for $1,405,008
Property Type Residential
Property ID 2519
Category House
Land Area 3,377 m2

Share

Mark Bailey photo

Mark Bailey

0412 085 124

Cameron Hughes photo

Cameron Hughes

0434 123 082